






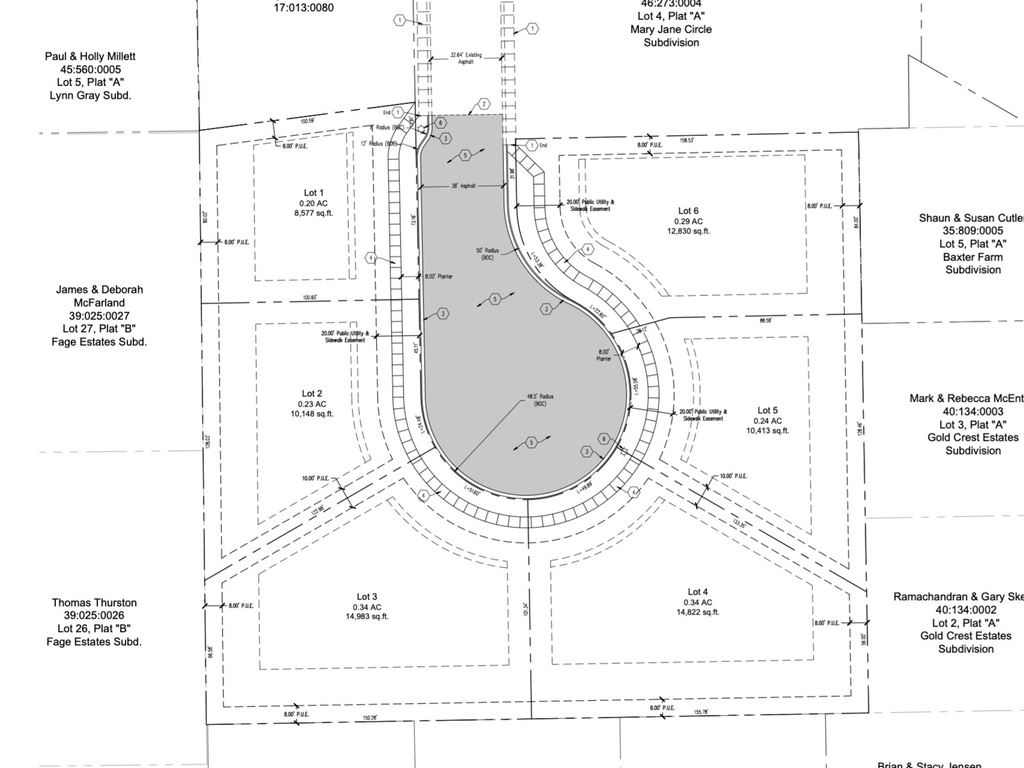
6 Lot Subdivision in NorthEast Orem (East of State Street). This is a beautiful and private cul-de-sac which will be a perfect subdivision opportunity for a builder looking to have their own neighborhood to build out. Also have another 8 lot subdivision close by. This pricing represents wholesale pricing for the entire subdivision.
1570 N 275 W was listed on Sep 15th, 2025 by G, a real estate brokerage. 801-404-4888 is the contact info for the listing brokerage contact assigned for this listing.
ClosingDealsInHighHeels.com shows ALL available properties from the MLS in Utah (WFRMLS), including any property that is pending, under contract, accepting backup offers, or actively seeking buyers.